Lokal użytkowy, wynajem 265 m² – parter, witryny, Kraków Płaszów
Szczegóły oferty
(75 PLN/m2) Powierzchnia:
265 m2 Powierzchnia użytkowa:
265 m2 Wejście: od ulicy
Opis oferty
Na wynajem przestronny lokal użytkowy 265 m² – parter, witryny, Płaszów
Na wynajem funkcjonalny i reprezentacyjny lokal użytkowy o powierzchni 265 m², przeznaczony pod usługi, handel, produkcję lekką lub działalność biurową, zlokalizowany na parterze nowoczesnego budynku mieszkalnego w dynamicznie rozwijającej się dzielnicy Płaszów.
Lokal oferowany jest w stanie do własnej aranżacji lub wykończenia, co daje przyszłemu właścicielowi pełną swobodę w dopasowaniu przestrzeni do profilu prowadzonej działalności. Dzięki dużym przeszkleniom i doskonałej ekspozycji od strony ulicy, nieruchomość świetnie sprawdzi się jako siedziba firmy lub punkt obsługi klientów.
Idealne przeznaczenie
Lokal doskonale nadaje się m.in. na:
-
działalność usługową (księgowość, kancelaria prawna, biuro projektowe),
-
gabinety kosmetyczne, medyczne lub rehabilitacyjne,
-
działalność handlową i showroom,
-
siedzibę firmy,
-
działalność biurową lub szkoleniową.
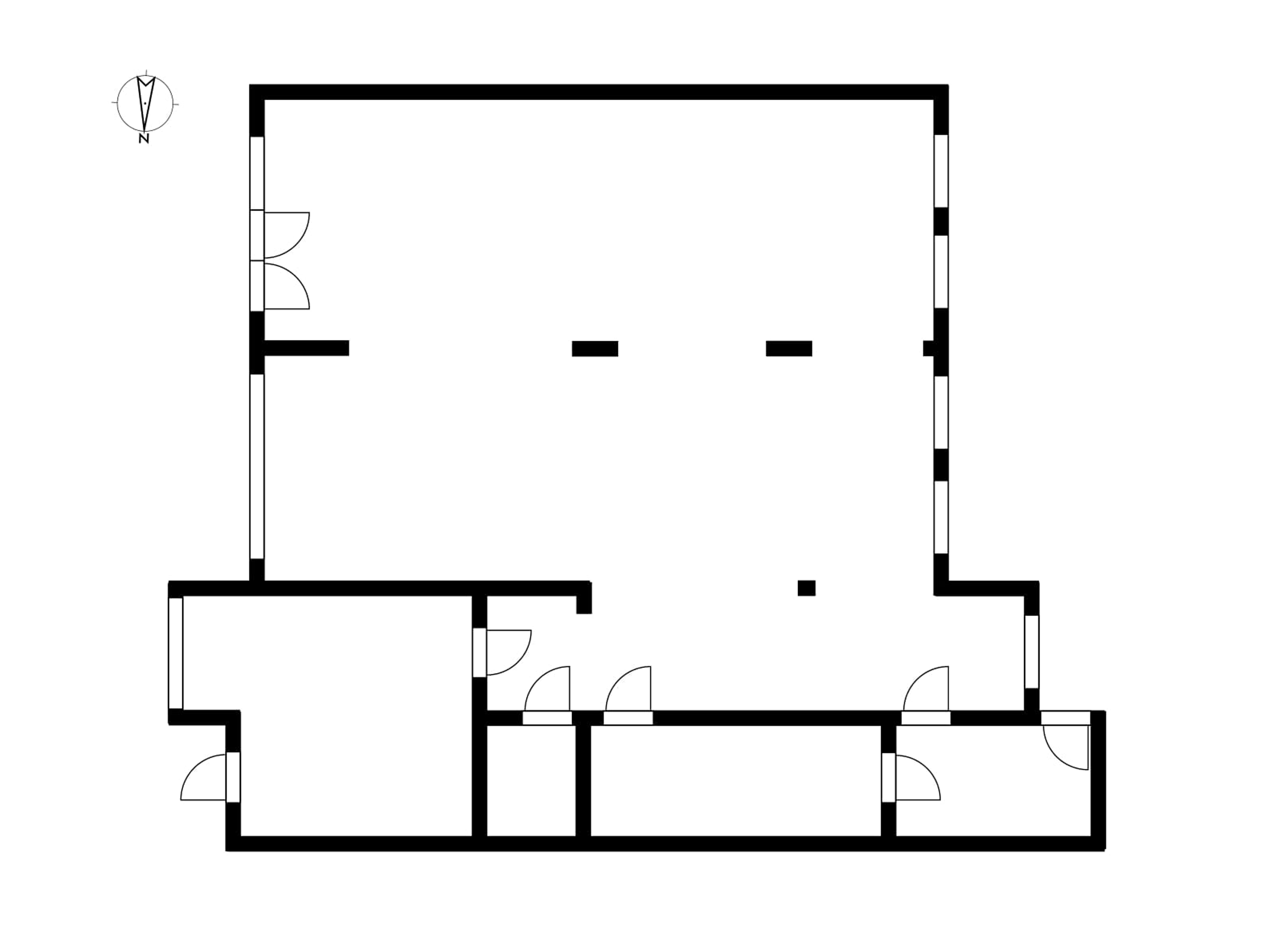
Rozkład pomieszczeń
-
główna sala / open space – ok. 190 m² (idealna jako sala sprzedaży, recepcja lub przestrzeń usługowa),
-
gabinet / pomieszczenie biurowe – 30 m²,
-
zaplecze socjalne (szatnia + kuchnia) – 30 m²,
-
łazienka – 10 m²,
-
WC – 5 m².
Najważniejsze atuty nieruchomości
-
parter nowoczesnego budynku mieszkalnego,
-
szerokie, przeszklone witryny zapewniające doskonałą widoczność,
-
dwa niezależne wejścia od strony ulicy oraz trzecie wejście od zaplecza,
-
wysokość pomieszczeń ok. 3 m, co daje duże możliwości aranżacyjne,
-
pełne zaplecze socjalne i sanitarne,
-
stan do dowolnej aranżacji,
-
lokalizacja w nowej, intensywnie rozwijającej się zabudowie mieszkaniowej.
Cena i warunki wynajmu:
-
Cena wynajmu: 20 000 zł netto
-
istnieje możliwość zakupu lokalu za cenę : 2 800 000 zł netto
Podsumowanie
To doskonała propozycja zarówno dla przedsiębiorców, którzy szukają reprezentacyjnej i funkcjonalnej przestrzeni do prowadzenia własnej działalności, jak i dla inwestorów poszukujących nieruchomości o dużym potencjale pod wynajem w atrakcyjnej, rozwijającej się lokalizacji.
Serdecznie polecam i zapraszam do kontaktu oraz na prezentację lokalu.
Lokalizacja
Zamieszczone na naszych stronach oferty nie stanowią oferty w rozumieniu Kodeksu Cywilnego, a dane w nich zawarte mają jedynie charakter informacyjny i mogą ulec zmianie. Każde biuro nieruchomości działające pod marką neodom® jest niezależnym podmiotem gospodarczym.
Szczegóły oferty
(75 PLN/m2) Powierzchnia:
265 m2 Powierzchnia użytkowa:
265 m2 Wejście: od ulicy
Detale oferty
| Przeznaczenie | biurowy, handlowy, handlowo-usługowy, usługowy, restauracja, magazyn, bank, pub, bar, warsztat, produkcja |
| Stan lokalu | do adaptacji |
| Typ lokalu | jednopoziomowe |
| Piętro | Parter |
| Powierzchnia użytkowa | 265 m2 |
| Okna | nowe aluminiowe |
| Wejście | od ulicy |
| Ilość wejść | 3 |
| Ogrzewanie | miejskie |
| Wysokość pomieszczeń | 3 m |
| Pow. sali sprzedaży | 190 m2 |
| Pow. zaplecza | 30 m2 |
| Podłogi | terakota |
| Rodzaj budynku | blok |
| Rok budowy | 2017 |
| Ilość pięter | 4 |
| Technologia budowy | pustak |
| Własny parking | Tak |
| Możliwość parkowania | Tak |
| Naziemne miejsca parkingowe | 2 |
| Położenie lokalu | spokojna ulica |